
Antigone
- Gratis levering aan huis
- Belgisch fabrikaat
- Levertermijn 7 weken
- Bekijk & bestel opties
- Bekijk omschrijving
- Bekijk kenmerken
Antigone is een moderne en functionele berging, ideaal als garage, werkplaats of opslagruimte. Het dubbele lessenaarsdak geeft een eigentijdse uitstraling en zorgt voor een efficiënte waterafvoer.
Deze berging is voorzien van een praktische sectionale poort, een volle houten deur, en twee vaste ramen, die zorgen voor natuurlijke lichtinval terwijl privacy en veiligheid gewaarborgd blijven. Gemaakt van PEFC-gecertificeerd Noord-Europees vurenhout, staat hij garant voor stevigheid en een lange levensduur. Bestel vandaag nog en geniet van een ruime en stijlvolle buitenruimte!
Deze berging is voorzien van een praktische sectionale poort, een volle houten deur, en twee vaste ramen, die zorgen voor natuurlijke lichtinval terwijl privacy en veiligheid gewaarborgd blijven. Gemaakt van PEFC-gecertificeerd Noord-Europees vurenhout, staat hij garant voor stevigheid en een lange levensduur. Bestel vandaag nog en geniet van een ruime en stijlvolle buitenruimte!
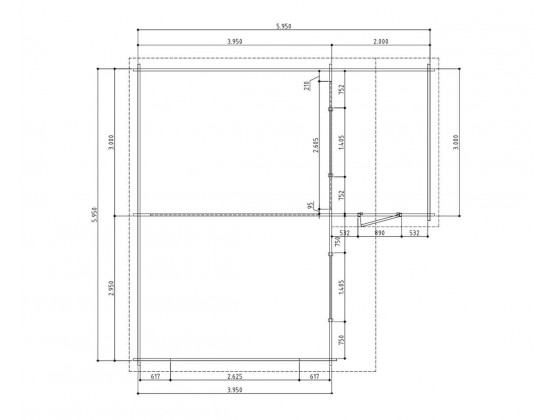
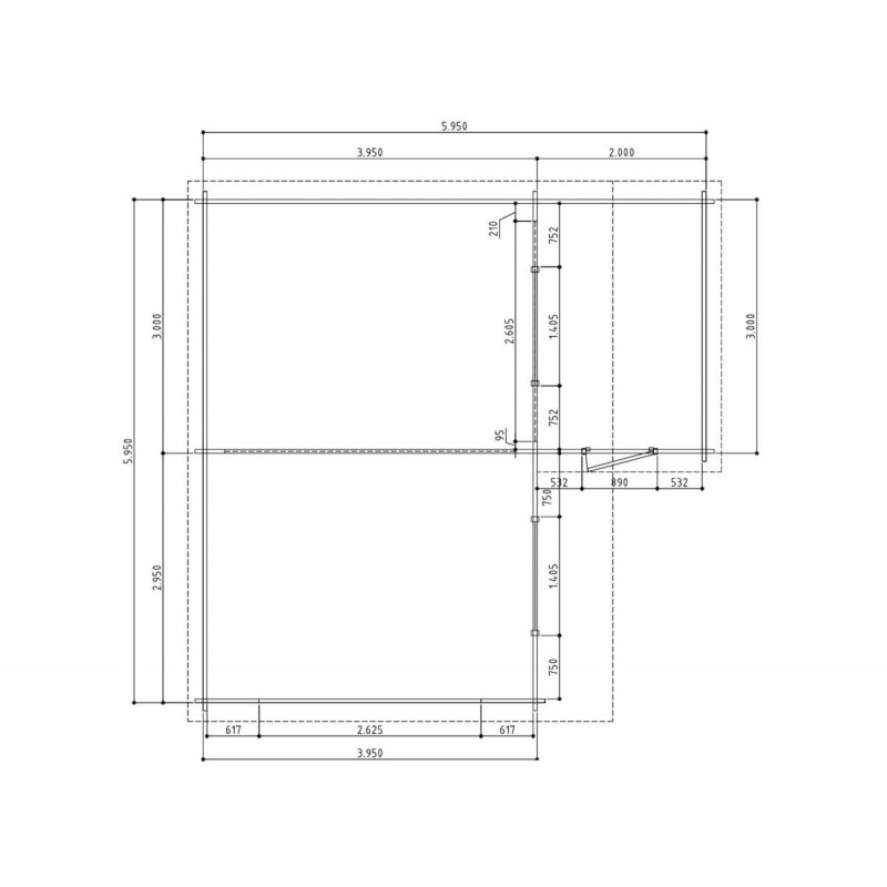
| Voorzijde: | 595 cm |
| Diepte: | 595 cm |
| Wanddikte: | 45 mm |
| Dakhelling: | 13°/7° |
| Zijhoogte: | 221/338 |
| Nokhoogte: | 365 |
| Dakoversteek voor: | 25 cm |
| Dakoversteek achteraan: | 25 cm |
| Dakoversteek links: | 18 cm |
| Dakoversteek rechts: | 93 cm |
| Merk: | grandcasa |
| Daktype: | lessenaarsdak |
| Lijn: | prime |
| Bouwmethode: | blokhutbouw |
Advies nodig?
Onze specialisten staan u graag te woord en hebben antwoord op al uw vragen.
Klik hier voor een vestiging bij u in de buurt
Andere klanten bekeken ook:
-
Duvari
Afmetingen: 600 x 595 cm
Houtdikte: 45 mm€ 16.087,00€ 14.478,30
-
Boduri
Afmetingen: 836 x 395 cm
Houtdikte: 45 mm€ 16.165,00€ 14.548,50
-
Kuramathi
Afmetingen: 931 x 450 cm
Houtdikte: 45 mm€ 22.748,00€ 20.473,20
-
Zambezi
Afmetingen: 1050 x 450 cm
Houtdikte: 45 mm€ 26.789,00€ 24.110,10
-
Siklos
Afmetingen: 1050 x 850 cm
Houtdikte: 45 mm€ 27.161,00€ 24.444,90


