
Duvari
- Livraison gratuite à domicile
- Fabrication belge
- Temp de livraison 7 semaines
- Options à choisir
- Description
- Caractéristiques
Options à choisirOptions à choisir DescriptionDescription CaractéristiquesCaractéristiques ReviewsReviews
Notre gamme Grandcasa Prime joue entièrement à la tendance des constructions inhabituelles, pour le jardin ainsi que la récréation. Cette ligne associe d'une manière créative et surprenante, les différentes forms du toit et les modèles qui sont déjà abordées dans d'autres Grandcasa lignes. Nous utilisons ici le sapin blanc du Nord. Tout le bois est certifié PEFC et toujours livré avec un certificat d'authenticité. Cet abri de jardin est équipé avec une porte double, une porte double, 4 fenêtres fixes réalisée en verre mat véritable de 4 mm et 3 fenêtres fixes en verre clair. Le toit est recouvert en caoutchouc synthétique EPDM, les gouttières sont incluses.
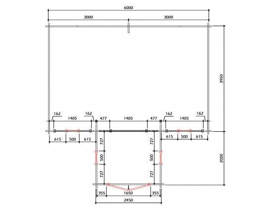
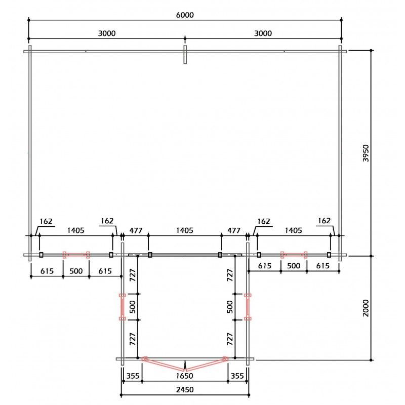
| Façade: | 600 cm |
| Profondeur: | 595 cm |
| épaisseur-de-la-paroi: | 45 mm |
| Pente du toit: | 13cm |
| Hauteur à côté: | 247 cm |
| Hauteur de faîte: | 370 cm |
| Debord devant: | 24 cm |
| Debord à l'arrière: | 24 cm |
| Debord côté gauche: | 24 cm |
| Debord côté droit: | 24 cm |
| marque: | grandcasa |
| type-de-toiture: | toit-plat |
| ligne: | prime |
| méthode-de-construction: | Système d’emboîtement |
Besoin de conseil?
Nos conseillers vous aident avec plaisir et offrent une réponse à toutes vos questions.
Cliquez ici pour trouver le magasin Chalet Center le plus proche


